Nouvelle Exclusivité Victoire Immobilier, Lyon 3e, Rue Julien.
Emplacement premium au cœur de Montchat, secteur résidentiel recherché, au calme et à proximité immédiate des commerces du très prisé cours du Docteur Long. À deux pas du tram T3, arrêt Reconnaissance Balzac (Part-Dieu en 2 arrêts) et de l’école réputée Charles de Foucauld : ici, tout se fait à pied.
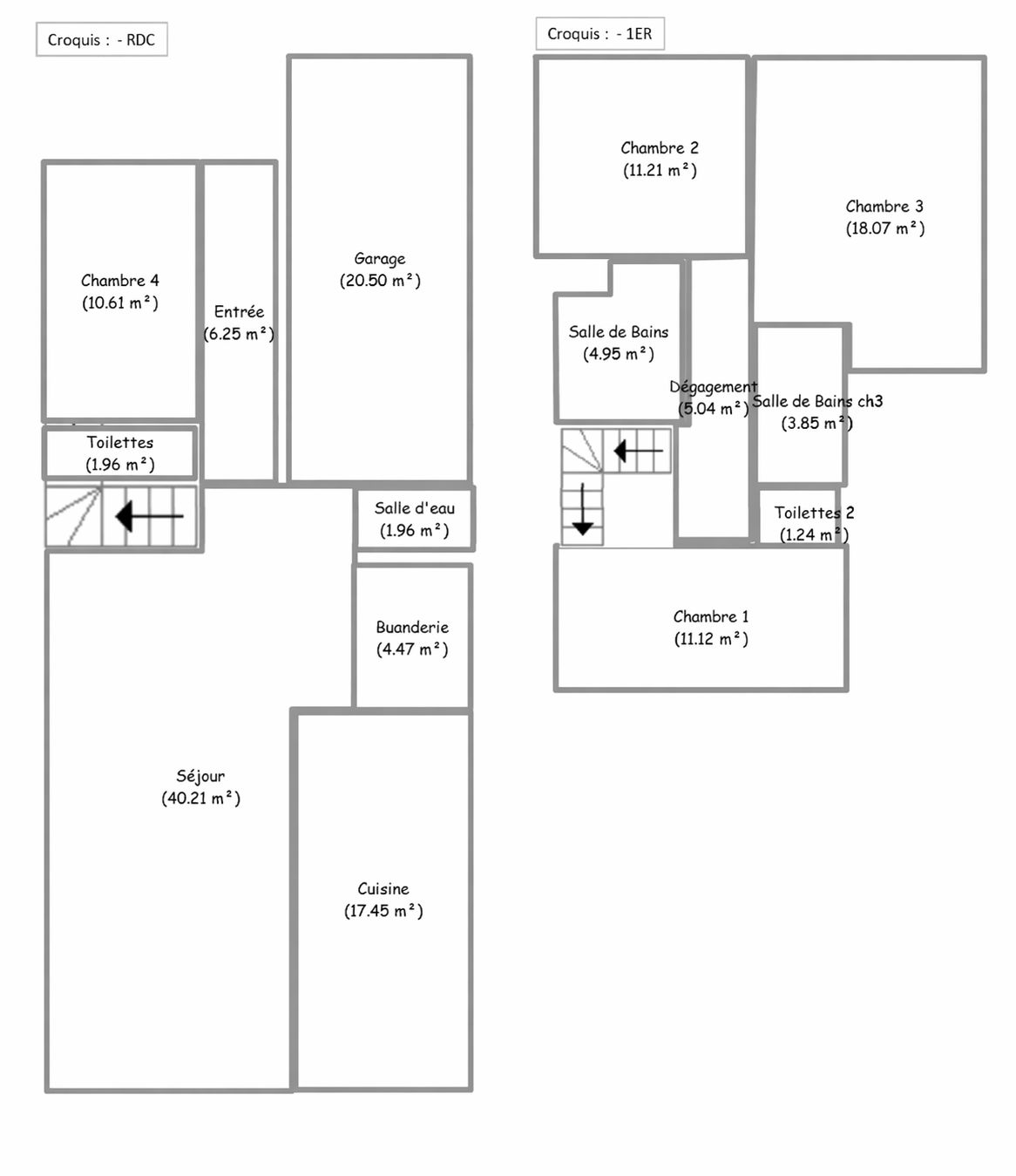
Venez découvrir cette maison individuelle de près de 140 m², réunissant tous les critères les plus recherchés du marché.
Dès l’entrée, le ton est donné avec une superbe pièce de vie de près de 58 m², véritable cœur de la maison. Baignée de lumière grâce à sa large baie vitrée, elle s’ouvre plein Sud sur la terrasse et la piscine, offrant un espace de vie rare sur le secteur, idéal pour recevoir et profiter en famille.
Toujours au rez-de-chaussée : une chambre, une buanderie, une salle d’eau, un WC ainsi qu’un accès direct au garage.
À l’étage : 3 chambres spacieuses, dont une suite parentale avec sa salle d’eau, une salle de bains et un WC composent un espace nuit parfaitement adapté à la vie de famille.
Côté prestations : chaudière gaz à condensation Viessmann, climatisation réversible dans toutes les pièces, menuiseries double vitrage à isolation renforcée, excellent confort thermique (DPE C), garage, terrain clos avec piscine…
Notre conseil ? Une maison aussi complète, avec un tel espace de vie et un emplacement aussi recherché, est une opportunité rare à Montchat… soyez réactifs !
Coeur de Montchat – Maison individuelle avec piscine et 4 chambres
Réf. : 3043
890 000 €



