EXCLUSIVITÉ Victoire Immobilier – Rue Louise, à seulement 200 m de la place du Château, à deux pas des transports, des établissements scolaires (écoles, collèges) et des commerces emblématiques du cours du Dr Long.
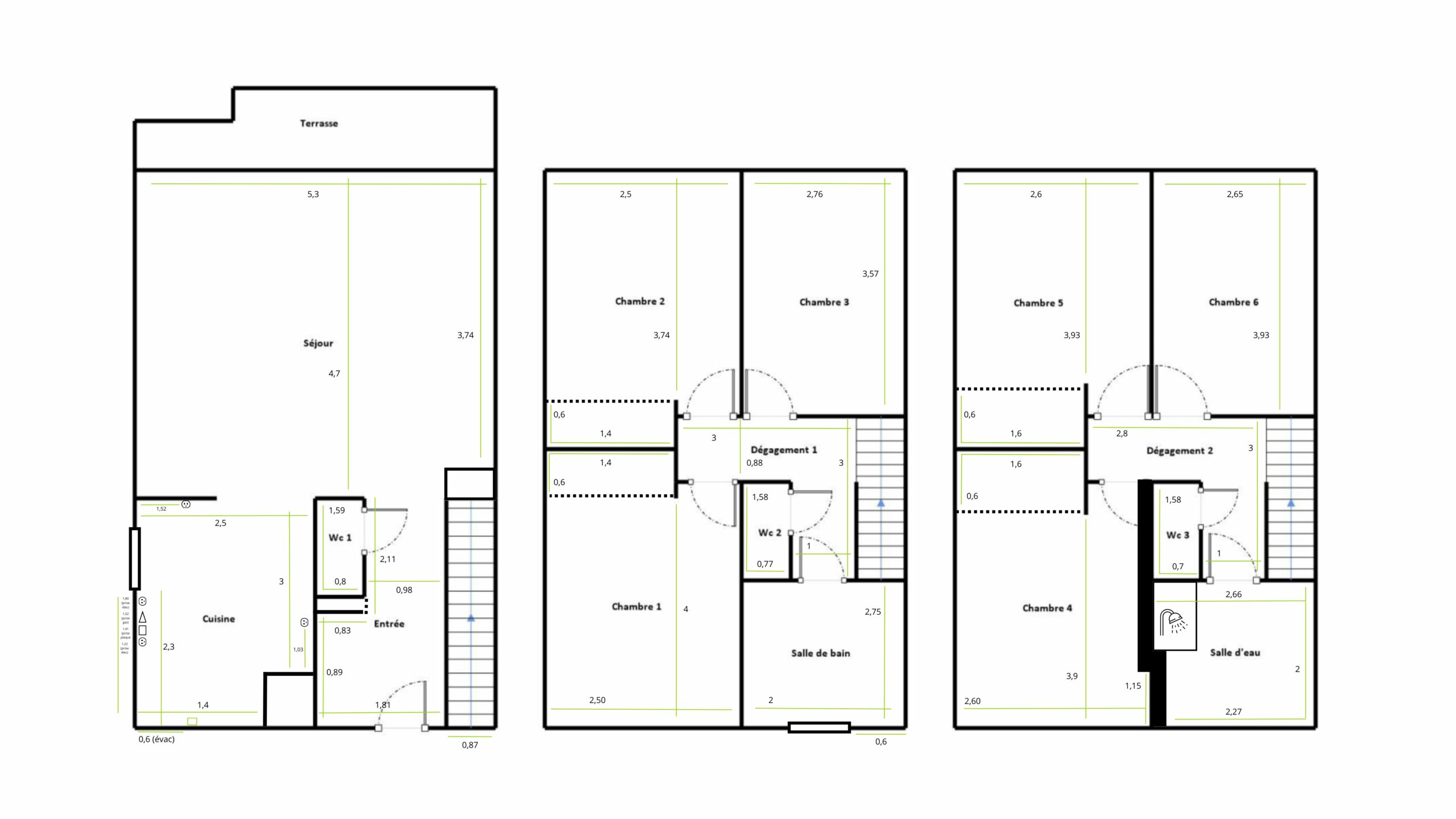
Venez découvrir cette maison aussi agréable que baignée de lumière, offrant 6 véritables chambres (en triplex, avec triple orientation !).
Au rez-de-jardin, vous apprécierez une pièce de vie de 33 m², avec sa cuisine semi-ouverte et son espace repas, ainsi qu’un séjour particulièrement lumineux (double orientation SUD / OUEST), prolongé par l’extérieur : un jardin et sa terrasse à ciel ouvert. Des WC indépendants complètent ce niveau.
Sur les deux étages supérieurs, vous retrouverez 3 chambres par niveau, ainsi que leur salle de bain et des WC séparés.
En sous-sol, une cave de plus de 19 m² et un très grand garage double motorisé d’environ 37 m², tous deux accessibles directement depuis la maison, viennent parfaire l’ensemble.
Nous pourrions vous en dire encore beaucoup, mais le mieux reste de venir la découvrir et de constater à quel point ce bien de 118 m² Carrez (124 m² au sol – hors annexes) et 78 m² hors Carrez est astucieusement conçu.



