Exclusivité Victoire Immobilier – Villeurbanne limite Montchat à 5 min du parc Bazin, à 2 min de la place Reconnaissance Balzac, à 170m du Tram T3, du BHNS et du C9. Côté commerces: à 50m d’une épicerie, 350m d’un Carrefour City et à 650m du cours Dr Long et des célèbres commerces montchatois.
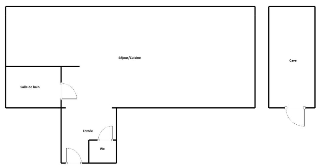
Venez découvrir, au premier étage sur quatre, ce grand studio de plus de 27m² dont la luminosité vous plaira sans nul doute (double exposition, grandes huisseries…) ainsi que son charme (vue sur terrasse, 3m de hauteur sous plafond…).
Côté agencement : agréable coin séjour, possibilité de créer une chambre à la place de la cuisine existante (tout en laissant 2 ouvertures pour le coin salon), salle de bains et WC séparés.
Côté rentabilité : possibilité de louer 595€ hors charges soit 6.2% de rentabilité, ce qui, pour un bien aux portes de Montchat, est aussi rare qu’appréciable.
A noter : double vitrage en bois, digicode, cave de plus de 4m² incluse (…)
Appelez sans tarder, les premiers à le faire seront les premiers à visiter !



